Дом состоит из пяти секций переменной этажности. Всего здесь будет 442 квартиры с улучшенной отделкой по стандартам программы реновации. Общая площадь квартир составляет 25 265,8 кв. м.
Первые этажи корпусов нежилые — на них размещаются объекты инфраструктуры и технические помещения для обслуживания жилого дома.
Адрес проекта:г. Москва, Ярославская ул., 2/1Водоснабжение:
Внутренняя разводка системы хозяйственно-питьевого водоснабжения в санузлах принята тупиковая с подключением система подключения потребителей через тройники (рис. 1). При тройниковой схеме общие трубы проходят от узла ввода до крайней точки водопотребления, к которой последовательно подключаются все устройства (смесители, стиральные машинки, унитаз и т.д.). Ответвления к приборам выполняются при помощи тройников.
Рис. 1 Тупиковая схема водоснабжения
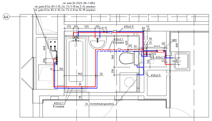
Разводка системы водоснабжения в санузлах и подключение сантехнических приборов выполнена из труб Elspipe Triplex, диаметром 20x2,9мм и осуществляется скрыто в коробах у пола (рис. 2).

Рис. 2 Фрагмент плана санузла
Трубопровод системы водоснабжения, проложенный скрыто, теплоизолируется трубками Energoflex толщиной 9мм, во избежание конденсации влаги (на трубопроводах системы В1), а также во избежание остывания воды в трубопроводах системы Т3.
Монтаж труб Elspipe Triplex производится с использованием аксиальных фитингов с надвижной гильзой. Техника соединения с надвижной гильзой обеспечивает абсолютную надежностью благодаря тому, что уплотнительные кольца или другие уплотнители, которые изнашиваются с течением времени, для этой системы не требуются. Функцию уплотнителя в системе выполняет сама труба.
Все компоненты системы ELSEN устойчивы к старению и коррозии, а гладкая внутренняя поверхность труб исключает появление отложений на протяжении всего срока службы.
Коллегами была проделана огромная работа с подрядной организацией, в результате которой удалось согласовать замену значительной части оборудования из спецификации первоначального проекта.
В результате проделанной работы компания Мастер Ватт поставила на объект: